Please choose your delivery location

The selection of the country/region page can influence various factors such as price, shipping options and product availability.
My contact person
Select location

After selection of your ZIP code, we designate the relevant staff to attend to you at once.

EG(EN)

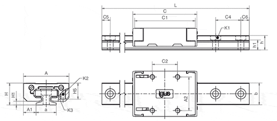
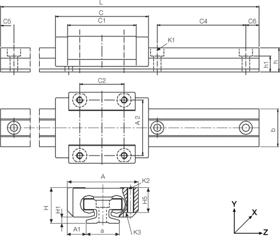
drylin® T - Low-profile guide

drylin® T low profile linear guide system

drylin® T low profile linear guide system - linear systems in compact design, four installation sizes, lubrication-free and maintenance-free

Maintenance-free, dry operation

Robust sliding carriage, not adjustable

Carriage body made of zinc

Wear resistant and interchangeable gliding elements made of iglidur® J (or iglidur® J200 for TW-04-07)

Hard-anodised aluminium rail

Low installation height

Corrosion-free

Hole pitches symmetrical C5 = C6

Dimensioned identical to low profile recirculating ball guide systems


drylin® T low profile linear guide as adjustable version, size 12

drylin® T low profile linear guide as adjustable version of size 12 in 8 levels

In size 12, the bearing clearance in miniature carriages TWE-04-12 can be easily adjusted with a screwdriver.

Adjustable bearing clearance

Lubricant- and maintance-free

High corrosion resistance through E-coating

Quiet running

Compact design


Ordering of a complete system

Configuration in few steps:

1. Selection of the installation size
2. Selection of the number of carriages per rail
3. Entry of the rail length in mm
4. Selection of the floating bearing option

Hint:

Detailed information can be found in the drawings and tables above, as well as in the below-mentioned pages. You can obtain precise specifications on the floating bearing options within the design rules.
1

no floating bearing

2

Floating bearing in y-direction

3

Floating bearing in z-direction

drylin® TK-04 – complete set

Step 1

Select the installation size of the carriage.

technical drawing
Installation size of the carriage:

T low profile guide rails

a [mm]:

 

DryLin® T low-profile guide rails

Order no.   Weight L
max.
a
-0,2
b C4 C5
min.
C5
max.
C6
min.
C6
max.
h h1 K1* ly lz Wby Wbz Price / m  
    [kg/m] [mm] [mm] [mm] [mm] [mm] [mm] [mm] [mm]       [mm4] [mm4] [mm3] [mm3]    
ready for shipping in 24-48 hours TS-04-07-UNGEBOHRT 2,384.05 EGP Add to shopping cart
ready for shipping in 24-48 hours TS-04-09-UNGEBOHRT 2,458.03 EGP Add to shopping cart
ready for shipping in 24-48 hours TS-04-12-UNGEBOHRT 2,671.52 EGP Add to shopping cart
ready for shipping in 24-48 hours TS-04-15-UNGEBOHRT 2,868.17 EGP Add to shopping cart
ready for shipping in 24-48 hours TS-04-07 NEW 0.08 2000 7 8 15 5 12 5 12 5.5 3.7 M2 131 90 32 29 2,649.05 EGP Add to shopping cart
ready for shipping in 24-48 hours TS-04-09 0.11 2000 9 9.6 20 5 14.5 5 14.5 6.3 4.6 M2 252 169 52 49 2,730.51 EGP Add to shopping cart
ready for shipping in 24-48 hours TS-04-12 0.2 2000 12 13 25 5 17 5 17 8.6 5.9 M3 856 574 132 120 2,968.36 EGP Add to shopping cart
ready for shipping in 24-48 hours TS-04-15 0.33 3000 15 17 40 10 29.5 10 29.5 10.8 7 M3 2420 1410 285 239 3,186.54 EGP Add to shopping cart
More about selected part:
3D-CAD 3D-CAD
Sample request Sample request
PDF PDF
Quote request Quote request
myCatalog myCatalog

*For screw DIN 912
For unbored rails please indicate "Unbored" in the remark.


T low profile carriage

H [mm]:

 

DryLin® T low-profile carriage

Order no.   Weight H
±0,2
A
±0,2
C
±0,3
A1
±0,35
A2 C1 C2 H1
±0,35
H5 K2** Tightening
torque
max.
K3*    
    [kg] [mm] [mm] [mm] [mm] [mm] [mm] [mm] [mm] [mm]   [Nm]      
ready for shipping in 24-48 hours TW-04-07 NEW 0.008 8 17 23 5 12 21 8 1.5 0 M2 0 727.57 EGP Add to shopping cart
ready for shipping in 24-48 hours TW-04-07-LLZ 0.008 8 17 23 5 12 21 8 1.5 0 M2 0 727.57 EGP Add to shopping cart
ready for shipping in 24-48 hours TW-04-09 0.017 10 20 29 5.5 15 18 13 1.7 7.2 M2 0.25 (M2) 958.87 EGP Add to shopping cart
ready for shipping in 24-48 hours TW-04-09-LLY 0.017 10 20 29 5.5 15 18 13 1.7 7.2 M2 0.25 (M2) 958.68 EGP Add to shopping cart
ready for shipping in 24-48 hours TW-04-09-LLZ 0.017 10 20 29 5.5 15 18 13 1.7 7.2 M2 0.25 (M2) 958.68 EGP Add to shopping cart
ready for shipping in 24-48 hours TW-04-12-LLY 0.034 13 27 34 7.5 20 22 15 2.2 9.5 M3 0.5 M2 (M3) 1,167.30 EGP Add to shopping cart
ready for shipping in 24-48 hours TW-04-12-LLZ 0.034 13 27 34 7.5 20 22 15 2.2 9.5 M3 0.5 M2 (M3) 1,167.30 EGP Add to shopping cart
ready for shipping in 10 working days TW-04-12 0.034 13 27 34 7.5 20 22 15 2.2 9.5 M3 0.5 M2 (M3) 1,166.74 EGP Add to shopping cart
ready for shipping in 24-48 hours TW-04-15 0.061 16 32 42 8.5 25 31 20 2.8 11 M3 0.5 M2 (M3) 1,440.17 EGP Add to shopping cart
ready for shipping in 24-48 hours TW-04-15-LLY 0.061 16 32 42 8.5 25 31 20 2.8 11 M3 0.5 M2 (M3) 1,440.26 EGP Add to shopping cart
ready for shipping in 24-48 hours TW-04-15-LLZ 0.061 16 32 42 8.5 25 31 20 2.8 11 M3 0.5 M2 (M3) 1,440.26 EGP Add to shopping cart
More about selected part:
3D-CAD 3D-CAD
Sample request Sample request
PDF PDF
Quote request Quote request
myCatalog myCatalog

*For screw DIN 912
** Thread
LLy for a carriage with floating bearing in y-direction
LLz for a carriage with floating bearing in z-direction

Assembly instruction drylin® TWE


ready for shipping in 24-48 hours
ready for shipping in 10 working days

The terms "Apiro", "AutoChain", "CFRIP", "chainflex", "chainge", "chains for cranes", "ConProtect", "cradle-chain", "CTD", "drygear", "drylin", "dryspin", "dry-tech", "dryway", "easy chain", "e-chain", "e-chain systems", "e-ketten", "e-kettensysteme", "e-loop", "energy chain", "energy chain systems", "enjoyneering", "e-skin", "e-spool", "fixflex", "flizz", "i.Cee", "ibow", "igear", "iglidur", "igubal", "igumid", "igus", "igus improves what moves", "igus:bike", "igusGO", "igutex", "iguverse", "iguversum", "kineKIT", "kopla", "manus", "motion plastics", "motion polymers", "motionary", "plastics for longer life", "print2mold", "Rawbot", "RBTX", "RCYL", "readycable", "readychain", "ReBeL", "ReCyycle", "reguse", "robolink", "Rohbot", "savfe", "speedigus", "superwise", "take the dryway", "tribofilament", "tribotape", "triflex", "twisterchain", "when it moves, igus improves", "xirodur", "xiros" and "yes" are legally protected trademarks of the igus® SE & Co. KG/ Cologne in the Federal Republic of Germany and where applicable in some foreign countries. This is a non-exhaustive list of trademarks (e.g. pending trademark applications or registered trademarks) of igus SE & Co. KG or affiliated companies of igus in Germany, the European Union, the USA and/or other countries or jurisdictions.

igus® SE & Co. KG points out that it does not sell any products of the companies Allen Bradley, B&R, Baumüller, Beckhoff, Lahr, Control Techniques, Danaher Motion, ELAU, FAGOR, FANUC, Festo, Heidenhain, Jetter, Lenze, LinMot, LTi DRiVES, Mitsubishi, NUM,Parker, Bosch Rexroth, SEW, Siemens, Stöber and all other drive manufacturers mention on this website. The products offered by igus® are those of igus® SE & Co. KG